Dieses Mehrfamilienhaus in 96172 Mühlhausen ist die ideale Gelegenheit für Projektentwickler und Kapitalanleger, die keine Zeit verlieren wollen. Mit einer bereits vorliegenden Architektenplanung für 4 Wohneinheiten bietet dieses Objekt die perfekte Basis für eine lukrative Vermietung (z. B. als klassische Wohnungen oder zur Arbeitervermietung).
Der aktuelle Stand – Startklar für den Wiederaufbau:
Das Gebäude wurde bereits fachgerecht entkernt. Sie sparen sich somit die kosten- und zeitintensiven Abbrucharbeiten und können direkt mit dem Neuaufbau beginnen.
Planungssicherheit inklusive:
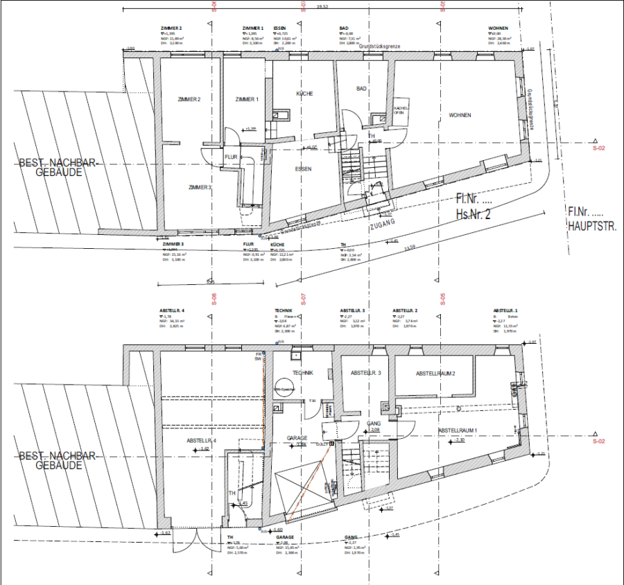
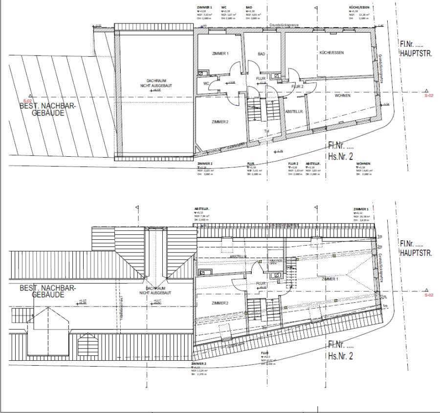
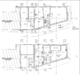
Fertiges Konzept: Eine durchdachte Umbauplanung für 4 Einheiten wurde bereits erstellt und ist nach aktuellem Stand genehmigungsfähig.
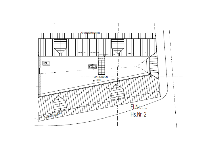
Dachsanierung: Der Bauantrag für die Sanierung des Daches liegt bereits vor – ein enormer Zeitvorteil im Genehmigungsprozess!
Nachhaltigkeit & Heizungsgesetz (GEG) – Ihr größter Vorteil:
Zukunftssicher heizen ohne Wärmepumpen-Stress! Ein Nahwärmeanschluss ist bereits vorhanden. Das bedeutet für Sie:
Sofortige Konformität: Die Anforderungen des Gebäudeenergiegesetzes (GEG) werden problemlos erfüllt.
Geringere Baukosten: Keine Investition in teure Heizsysteme oder Brennstofflager nötig.
Mehr Platz: Durch den kompakten Anschluss gewinnen Sie wertvolle Nutzfläche im Keller.
Hinweis:
Das Objekt ist voll unterkellert und verfügt über keinen Garten oder Terrasse. Dies macht die Immobilie besonders pflegeleicht in der späteren Bewirtschaftung, da keine Kosten für die Pflege von Außenanlagen anfallen.
Sonstiges
Dieses Objekt im Herzen von Mühlhausen ist die ideale Wahl für alle, die eine langwierige Vorbereitungsphase überspringen möchten. Durch den bereits entkernten Zustand und die vorliegenden Konzepte sparen Sie wertvolle Monate und können direkt in die Umsetzung gehen.
Für Kapitalanleger: Die durchdachte Planung für 4 Wohneinheiten ermöglicht eine hocheffiziente Vermietung. Dank des Nahwärmeanschlusses und des fehlenden Gartens profitieren Sie von minimalem Instandhaltungsaufwand und hoher Zukunftssicherheit.
Für Eigennutzer: Gestalten Sie die 216 m² als großzügiges Mehrgenerationenhaus oder kombinieren Sie Wohnen und Arbeiten unter einem Dach – die entkernte Substanz lässt Ihnen jede Freiheit.
Alles bereit für den Baustart:
Mit dem vorliegenden Bauantrag für die Dachsanierung und der genehmigungsfähigen Umbauplanung sind die größten bürokratischen Hürden bereits genommen.
Nutzen Sie diese Gelegenheit!
Kontaktieren Sie uns noch heute für eine Besichtigung und überzeugen Sie sich vor Ort von dem enormen Potenzial und der bereits geleisteten Vorarbeit.
Das Objekt befindet sich in der idyllischen Marktgemeinde Mühlhausen (PLZ 96172). Die Lage zeichnet sich durch eine gute Anbindung an die umliegenden Städte (Erlangen/Bamberg/Höchstadt) und die Autobahn A3 aus. Besorgungen des täglichen Bedarfs sind in der näheren Umgebung problemlos möglich.
Die dargestellte Position der Immobilie ist nur eine ungefähre Angabe.